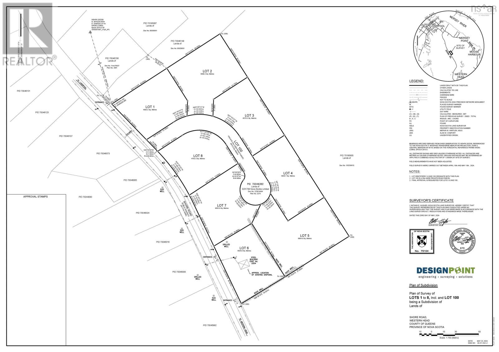
Lot 5 Larry Seldon Lane Western Head, Nova Scotia B0T 1K0
Acreage
Not Landscaped
$80,000
Introducing: Western Head Woods Sub-Division. Discover the perfect place to build your home only minutes from downtown Liverpool NS. Nestled in a peaceful private setting, these premium lots offer a unique opportunity to be part of a growing vibrant community with easy access to schools, beaches, dining experiences, and shopping nearby. These spacious level lots averaging approximately 1.2 acres with private road, offer space for lawns, gardens and custom home designs. Great investment opportunity since very few building lots of this quality available in Liverpool area for development. (id:40687)
Property Details
| MLS® Number | 202427653 |
| Property Type | Vacant Land |
| Community Name | Western Head |
| Features | Level Lot, Treed, Hardwood Bush |
Building
| Utility Water | None |
Parking
| None |
Land
| Acreage | Yes |
| Landscape Features | Not Landscaped |
| Sewer | No Sewage System |
| Size Irregular | 1.6963 |
| Size Total | 1.6963 Ac |
| Size Total Text | 1.6963 Ac |
https://www.realtor.ca/real-estate/27700746/lot-5-larry-seldon-lane-western-head-western-head
Contact Us
Contact us for more information







