Lot 5 Basin Road Evanston, Nova Scotia B0E 1J0

Waterfront On River Acreage

$85,000

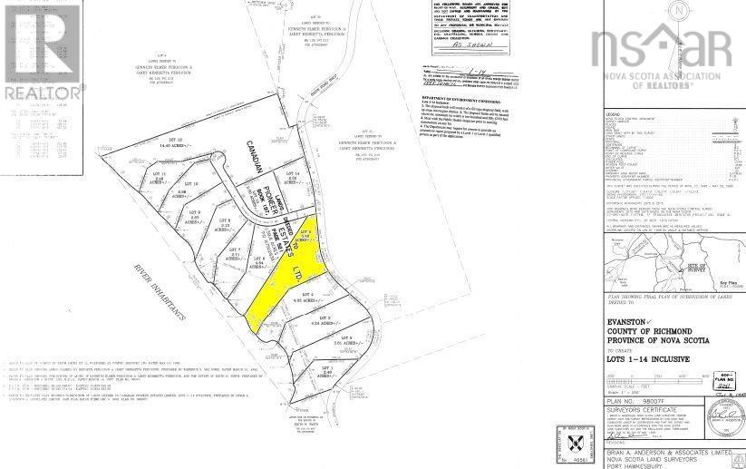
In one of Nova Scotia's most popular regions, you will find this beautiful 5.46 Acre riverfront lot (Lot 5), right on the River Inhabitants. The property, which can be used all year round, is accessed via a public road and slopes gently south-west from the road to the shore. Electricity and telephone are located directly in front of the property. High-speed internet is possible in this area without any problems. St. Peters and Port Hawkesbury with their supermarkets and various shops, schools, doctors, banks and restaurants can be reached in around 15 minutes. It is also only a quarter of an hour's drive to play golf at the Dundee Golf Club in West Bay. The world-famous Cabot Trail is around 1.5 hours' drive away and Halifax International Airport is just over two and a half hours away by car on well-developed highways. (id:40687)

Property Details

MLS® Number 202422890
Property Type Vacant Land
Community Name Evanston
Features Treed
Water Front Type Waterfront On River

Building

Utility Water None

Parking

None

Land

Acreage Yes
Sewer No Sewage System
Size Irregular 5.46
Size Total 5.46 Ac
Size Total Text 5.46 Ac

https://www.realtor.ca/real-estate/27451807/lot-5-basin-road-evanston-evanston

Contact Us

Contact us for more information

Your Favourites

 

No Favourites Found