2 Bedroom
2 Bathroom
1,100 ft2
Bungalow
Heat Pump
$369,000
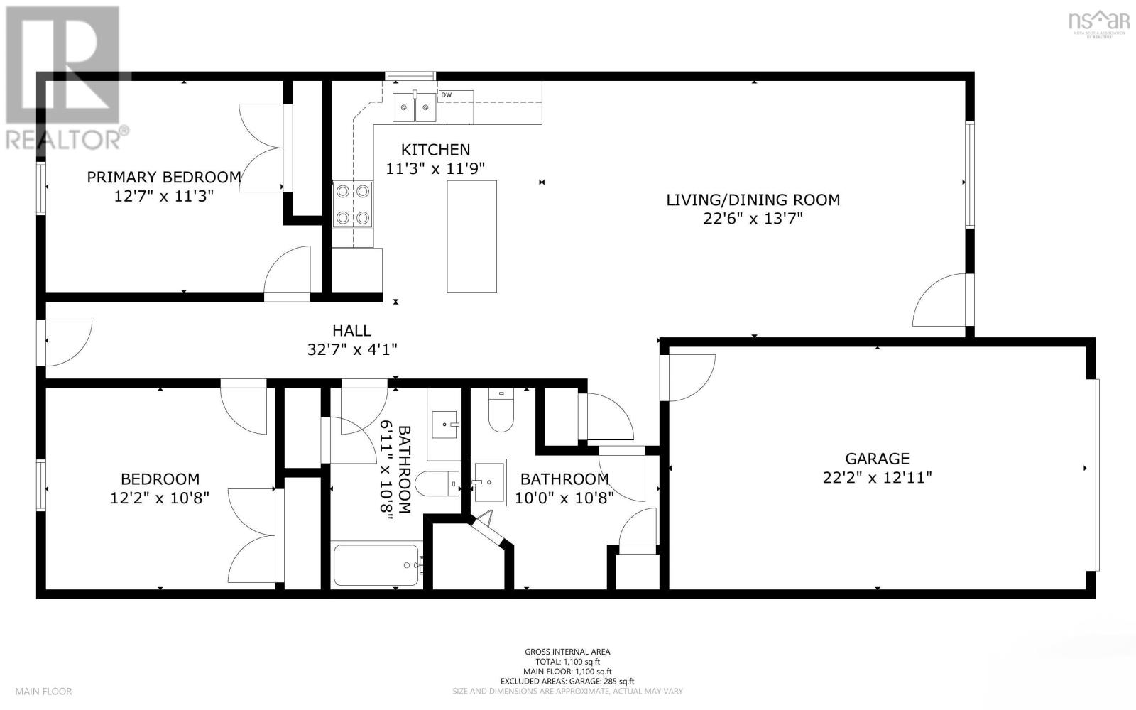
Amazing opportunity to get into this new construction semi-detached bungalow directly across the street from the Paragon Golf Course in the community of Kingston. This newly built home features 1100 square feet of living space on one level with an attached single garage and an open concept floor plan. Entering the home you will be impressed with the spacious main living area which connects to the well appointed kitchen featuring stainless steel appliances, tile backsplash and a large island with a counter height eating bar. The hallway off of the kitchen leads to 2 large bedrooms as well as access to the large private rear yard. Both bathrooms are well appointed with one featuring laundry hook ups as well as additional storage spaces. Kingston is a fast growing community and this property is in a fantastic location within walking distance to Superstore and and other amenities. Be sure to book your private viewing of this great property before it is gone. HST included in list price. (id:40687)
Property Details
|
MLS® Number
|
202503502 |
|
Property Type
|
Single Family |
|
Community Name
|
Kingston |
|
Amenities Near By
|
Golf Course, Playground, Shopping |
|
Features
|
Level |
Building
|
Bathroom Total
|
2 |
|
Bedrooms Above Ground
|
2 |
|
Bedrooms Total
|
2 |
|
Appliances
|
Stove, Dishwasher, Refrigerator |
|
Architectural Style
|
Bungalow |
|
Basement Type
|
None |
|
Construction Style Attachment
|
Semi-detached |
|
Cooling Type
|
Heat Pump |
|
Exterior Finish
|
Aluminum Siding |
|
Flooring Type
|
Vinyl Plank |
|
Foundation Type
|
Concrete Slab |
|
Half Bath Total
|
1 |
|
Stories Total
|
1 |
|
Size Interior
|
1,100 Ft2 |
|
Total Finished Area
|
1100 Sqft |
|
Type
|
House |
|
Utility Water
|
Drilled Well |
Parking
|
Garage
|
|
|
Attached Garage
|
|
|
Concrete
|
|
|
Shared
|
|
Land
|
Acreage
|
No |
|
Land Amenities
|
Golf Course, Playground, Shopping |
|
Sewer
|
Municipal Sewage System |
|
Size Irregular
|
0.1667 |
|
Size Total
|
0.1667 Ac |
|
Size Total Text
|
0.1667 Ac |
Rooms
| Level |
Type |
Length |
Width |
Dimensions |
|
Main Level |
Living Room |
|
|
22.6 |
|
Main Level |
Kitchen |
|
|
11.3 |
|
Main Level |
Bath (# Pieces 1-6) |
|
|
10.8 |
|
Main Level |
Bath (# Pieces 1-6) |
|
|
10.8 |
|
Main Level |
Primary Bedroom |
|
|
12.7 |
|
Main Level |
Bedroom |
|
|
12.2 |
https://www.realtor.ca/real-estate/27948860/399-main-street-kingston-kingston