3 Bedroom
1 Bathroom
2,177 ft2
Heat Pump
Waterfront
Acreage
Landscaped
$399,999
If you are looking for a home that gives you stunning views of the ocean from nearly every room, this is the one youve been searching for! This beautiful home is in a sought out area, situated in a quiet subdivision, only 4 kms to the amenities of Barrington Passage and features full exposure of Barrington Bay. The large windows gives this home lots of natural light. The spacious front livingroom flows right into the eat-in kitchen. The open-concept kitchen and family room offers the perfect setting for hosting gatherings and entertaining. The kitchen is a chefs dream with ample counter space, a closet pantry, a propane cooktop on the kitchen island and a layout designed for both cooking and entertaining. Just beyond the family room is a garden door that leads you out to a large deck to really enjoy the views. This is a bird watchers paradise. A very spacious primary bedroom and two additional good size bedrooms are found just down the hallway and an office with laundry is conveniently located off the livingroom. Lots of storage space with closets throughout the home. Recent upgrades include a steel metal roof, two heat pumps for year-round efficiency and comfort, and the bathroom has been extensively renovated giving you a beautiful soaker tub and double sink vanity. Outside you will be pleased by the mature landscaping, fruit trees which include apple, cherry, nectarine and a few grape vines, a convenient and easy to maintain paved driveway and a 10X12 storage shed for yard equipment. There is a neighbouring playground and is within a great school district. Dont miss out on this chance to surround yourself with breathtaking ocean views and those East Coast ocean smells! (id:40687)
Property Details
|
MLS® Number
|
202426826 |
|
Property Type
|
Single Family |
|
Community Name
|
Brass Hill |
|
Amenities Near By
|
Golf Course, Park, Playground, Shopping, Place Of Worship, Beach |
|
Equipment Type
|
Propane Tank |
|
Features
|
Level |
|
Rental Equipment Type
|
Propane Tank |
|
View Type
|
Ocean View, View Of Water |
|
Water Front Type
|
Waterfront |
Building
|
Bathroom Total
|
1 |
|
Bedrooms Above Ground
|
3 |
|
Bedrooms Total
|
3 |
|
Appliances
|
Cooktop - Propane, Oven - Electric, Dishwasher, Dryer, Washer, Freezer, Water Purifier |
|
Basement Type
|
Crawl Space |
|
Constructed Date
|
1986 |
|
Construction Style Attachment
|
Detached |
|
Cooling Type
|
Heat Pump |
|
Exterior Finish
|
Vinyl |
|
Flooring Type
|
Carpeted, Ceramic Tile, Hardwood, Laminate |
|
Foundation Type
|
Concrete Block |
|
Stories Total
|
1 |
|
Size Interior
|
2,177 Ft2 |
|
Total Finished Area
|
2177 Sqft |
|
Type
|
House |
|
Utility Water
|
Dug Well, Well |
Parking
Land
|
Acreage
|
Yes |
|
Land Amenities
|
Golf Course, Park, Playground, Shopping, Place Of Worship, Beach |
|
Landscape Features
|
Landscaped |
|
Sewer
|
Municipal Sewage System |
|
Size Irregular
|
1.01 |
|
Size Total
|
1.01 Ac |
|
Size Total Text
|
1.01 Ac |
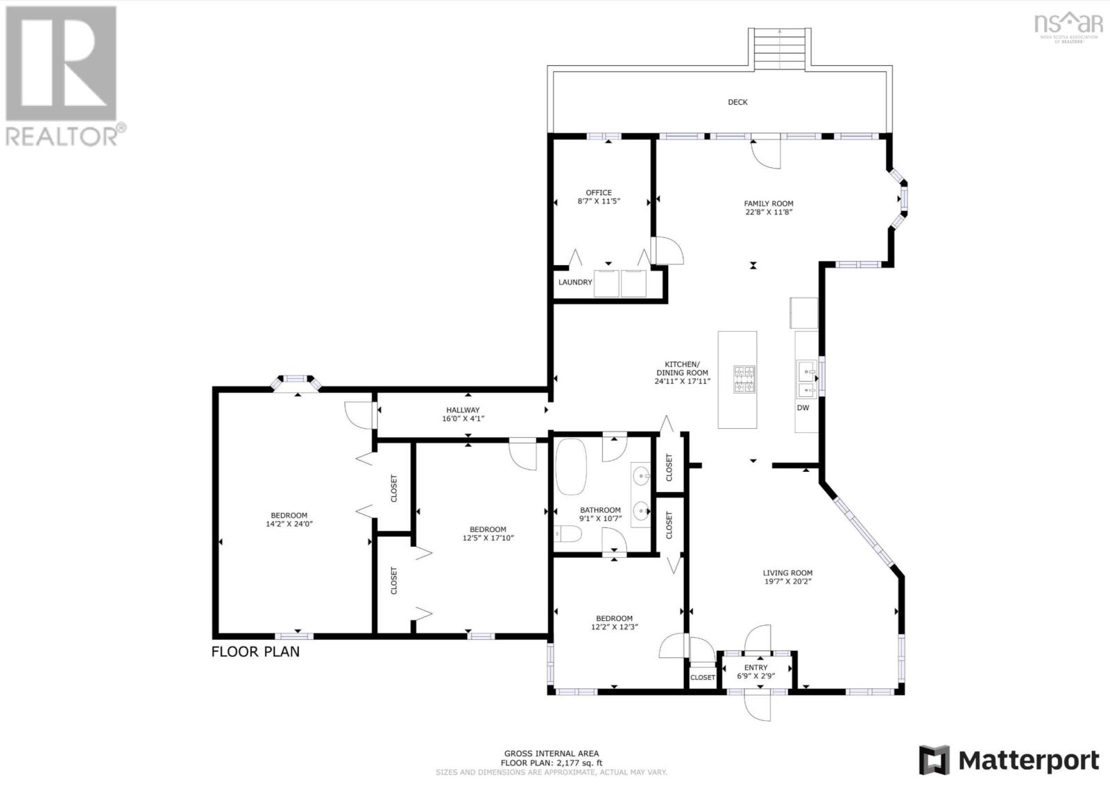
Rooms
| Level |
Type |
Length |
Width |
Dimensions |
|
Main Level |
Porch |
|
|
6.9 x 2.9 |
|
Main Level |
Living Room |
|
|
19.7 x 20.2 |
|
Main Level |
Eat In Kitchen |
|
|
24.11 x 17.11 |
|
Main Level |
Den |
|
|
8.7 x 11.5 |
|
Main Level |
Bath (# Pieces 1-6) |
|
|
9.1 x 10.7 |
|
Main Level |
Primary Bedroom |
|
|
14.2 x 24 |
|
Main Level |
Bedroom |
|
|
12.5 x 17.10 |
|
Main Level |
Bedroom |
|
|
12.2 x 12.3 |
https://www.realtor.ca/real-estate/27661653/119-island-view-drive-brass-hill-brass-hill